?
房子裝好了,茶已泡好了,花都開好了,歡迎來我家。家體現了一種生活方式,展示著不同的生活情懷。本期“來我家”來到了保利國際廣場的老劉和徐女士的新家,跟很多都市女性一樣,女主人鐘愛優雅與時尚共存的新古典風格,從裝修到家具、從裝飾到陳列,無不散發出“美”的生活氣息,也體現著這家人對待生活的優雅態度和享受生活的理念。
房屋信息
房子位置_保利國際廣場
面積_240平
裝修總花費_60萬
裝修花費總時長_三個月
入住時長_1個月
家居風格_新奢古典風
家中最愛_客廳、臥室
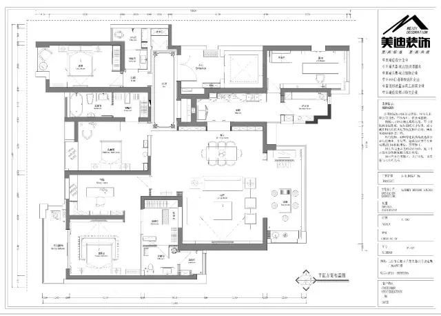
▲原始結構圖&平面布置圖
這套240平的新奢古典風新家,打破了空間固有設計風格的束縛,在規律中進行變化,寧靜的裝飾線條、純凈的整體空間、跳躍的顏色搭配,時而閃爍耀眼、時而平靜溫和,充滿生動的靈感和設計的通透感,沒有過多繁復的裝飾,一氣呵成。最自然的呈現,彌漫著高貴又時尚的新古典韻味。
▲客廳區域
「美迪裝飾」業主 徐女士 說
客廳以白色為主色調,奠定了整個空間純凈明亮的基調。在裝飾上點綴金色、藍色等,將新古典的奢華與優雅發揮得淋漓盡致。
▲客廳區域
「美迪裝飾」業主 徐女士 說
電視背景墻采用金色鑲嵌,有都市生活的氣息;皮質的材質比墻紙更能提高空間的質感,沙發和窗簾的顏色與材質在搭配上也盡量與整體相呼應。
▲餐廳區域

「美迪裝飾」業主 徐女士 說
客餐廳一體化的設計增加了空間的通透感,設計師在這里花了很多心思,將原本單調的隔墻用裝飾畫豐富,連通了餐廳和廚房。旁邊做成方便收納的酒柜和儲物柜,既滿足了我的收納功能,同時充滿了豐富的設計感。
▲過道區域
「美迪裝飾」業主 徐女士 說
因為我本人非常喜歡畫畫,也去看過很多畫展。這幅收藏的畫家李猛的油畫,豐富了過道區域的裝飾,也符合新古典風格的意蘊,給空間增色不少。
▲書房
「美迪裝飾」業主 徐女士 說
可能第一眼看到書房,大家會覺得整個色調和整體有所區別,這正是別有用心的地方。棕色給人的第一印象就是溫暖、沉穩,營造一種適合學習的安靜氛圍。
更多空間細節
▼
1、美迪裝飾:對裝修效果滿意嗎?有沒有令你感到最遺憾且值得改進的地方呢?
徐女士:非常滿意,我覺得最后呈現的效果是超過預想的。我的朋友們都特別羨慕我,新家的裝修收獲了一波好評,挺開心的。
2、美迪裝飾:在整個裝修過程中,你覺得美迪裝飾的設計師、施工人員等工作人員帶給你最大的感受是什么呢?
徐女士:“專業”應該是美迪給我的最大感受。設計師丁明老師在了解了我們的需求后,在設計上達到了功能性和美觀性兼顧的效果。包括客服經理、項目經理的服務都非常專業,每次我提出的問題都會立馬解決,所以整個裝修過程還挺順利的,很省心。
3、美迪裝飾:你在家居裝潢和家居布置中可以給其他人一些建議嗎?
徐女士:我覺得首先房子最能體現一個人的生活品質,所以在裝修上還是要有一定的品質追求。在硬裝部分要考慮到家人的生活方式和習慣,盡量多兼顧功能性和實用性;軟裝部分可以多考慮個性化需求和喜好。
本案設計師>>
美迪裝飾河西店設計總監丁明老師
本案設計師:丁明
2005年湖南省第五屆室內設計大賽優秀獎
2007年湖南省第七屆室內設計大賽銅獎
2010年第四屆室內設計大賽銀獎
2011年中國室內設計大賽方案類金獎
2012年湖南省第十二屆室內設計大賽銀獎
2013年中國室內設計大賽作品方案類銀獎
2014年中國居然杯設計大賽案例類作品金獎
2014年CIID雙年獎設計大賽獎項
2015年湖南省室內設計大賽實例類銀獎