?
家,是人們身體乃至靈魂依托的港灣,一切以人為本,丟棄冗雜的布置才可回歸生活的本質。當你擺脫一切不需要的設計語言會帶來一種激動人心的東西—“純凈”。本案的設計中,設計師致力于打造都市生活中的心靈之所,在繁忙生活中尋找生活美學的深層意義。
本期《來我家》要走近某電臺知名主持人的180㎡現代風格新家,這個兼具實用性與審美性的品質居家空間,絕對會讓你眼前一亮。
INFORMATION
「項目信息」
現代輕奢
項目地址:北辰定江洋
項目面積:180㎡
項目風格:現代輕奢
全案設計:美迪裝飾楊敏
項目用材:木飾面、定制烤漆板、墻布、定制硬包、木地板、素色亞光磚
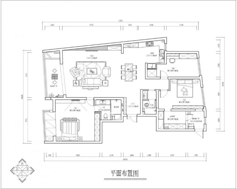
FLOOR PLAN
「平面布置方案」
本案在空間上改造不大,整體以灰白黑色系呈現,大理石圓桌、金屬材質、深色皮質沙發,表達出干練簡潔的空間語言,通透的視線感營造舒適的氛圍。回到家里就是回到最初始的純凈狀態,這正是業主所希望營造的本意生活。
ANALYSIS
「空間分析」

SHOPPING LIST
「購物清單」

INTERVIEW
「業主采訪」
1、美迪裝飾:在裝修期間你遇到的最大挑戰是什么?
業主:在裝修期間,我遇到最大的挑戰就是在設計初期,因為不知道自己想要什么風格,什么樣子,完全是裝修小白。因為裝修是個不可逆的行為,如果裝修完了,不符合自己的品味,就會很麻煩。
2、美迪裝飾:你家里有哪個地方或者裝修期間有哪個階段是令你感到最遺憾且值得改進地方嗎?
業主:沒有遺憾,我們一家人都很滿意。
3、美迪裝飾:在整個裝修過程中,你覺得美迪裝飾的設計師、施工人員等帶給你最大的感受是什么呢?
業主:美迪的設計師和施工人員給我最大的感受就是很勤懇,很敬業,尤其是項目經理很負責任,很有擔當,有什么事情都會第一時間幫我們解決。
4、美迪裝飾:你在裝修和家居布置中可以給其他人一些建議嗎?
業主:在裝修和家居布置中,一定要以生活舒適為前提,不要一味的追求時尚,而應該是在滿足舒適的基礎上去嘗試一些時尚新潮的挑戰。
DESIGNER
「本案設計師」

美迪總店首席設計師_楊敏
從業12年
畢業于長沙理工大學設計藝術學院
進修于清華大學美術學院
中國建筑學會室內設計分會會員
— 獲獎經歷 —
2008中國室內設計大獎賽佳作獎
2010年海峽兩岸四地室內設計大賽居住工程類優秀獎
2011年獲湖南省室內設計大獎賽家居實例類銀獎
2013獲第四屆中國國際空間環境藝術設計大賽金獎提名
2014年獲湖南省室內裝飾行業優秀設計師
如果你也想裝一個這樣的新家,美迪裝飾家裝盛典年度客戶感恩答謝會暨2019首批感恩代言房火熱征集中,千萬豪禮鉅惠感恩回饋。
“2018美迪裝飾最受歡迎的實景作品評選”即將啟幕,敬請期待!