?
這對來自湖南一所知名大學的教授夫婦,從事學術研究工作幾十年,在生活中卻喜好平淡清靜,對家的要求就是簡單的雅致愜意不失生活氣息。
美家信息
樓盤:芙蓉萬國城洋房
面積:320㎡
戶型:七房三廳三衛(三層半)
風格:新中式風格
設計師:張勛
美家欣賞
從進入小區開始就能感受到一種安靜閑暇的舒適感。夫妻兩帶著小女兒,也時常會接來母親一起同住,所以對居住環境的整體要求都是很高的。
玄關
進門的玄關設計就會讓人有種入畫的美感,圓形荷花的設計寓意著家庭圓滿和睦。當然主人對生活的追求絕不是華而不實,所以設計師在玄關設計上對實用性把握度也極強,收納整理,都極為方便。
△玄關細節
原木色系配合中國風的雅致屏風,在搭上一個青花瓷器作為畫面點綴,未進室內就已經有種撲面而來的書香氣質和優雅的生活氣息。
原餐廳結構偏小,為了給主人一個更寬敞也更有氛圍的用餐環境,設計師在不浪費原有空間的基礎上,把餐廳做大,還搭建了一個露臺。
同時還為主人增加玻璃頂做成了娛樂室,并貼心的設計了電動遮陽簾,避免陽光直射。考慮到防滑,客餐廳地面采用的都是仿木紋的瓷磚,好看的同時也更實用。
從入門到廚房餐廳,極簡化的方便了主人生活習慣,設計師在各個細節處也參照到主人的個性喜好,即使是在餐廳一角,從山水彩墨到綠色植物,都為整個空間增添了無數得詩意。
為了增大客廳空間,也增加整個客廳的生活實用性,設計師將陽臺與客廳打通,再從原客廳陽臺往外搭建了一間露天的陽臺,滿足了主人在日常生活中的多種需求性。
在家居搭配上,設計師也是巧用心思。為了不使整個空間太過古板沉悶,在原木色系的整體風格上點綴蔚藍色的窗簾,電視墻的設計也與整體形成一種呼應,讓室內馬上增加了一種清新的風味。
皮質沙發加入,電視背景墻與空間綠色植物的組合,用女主人自己的話來說:讓我們感覺到年輕!這也是這對教授夫婦的一種生活態度,嚴謹而有活力,大概也是因為他們多年的職業素養所形成。
△客廳細節圖
從整體到細節,設計師在和主人交流的過程中,儼然已成為一種生活好友,才能最大程度的幫助主人實現了這個理想居住空間的文化與生活完美集合~
所有通道的設計及改造也是主人最滿意的地方啦!新中式風格的設計會盡量避免尖角和太直的轉彎,因此設計師在吊頂和很多細節設計上加上了圓弧的拐彎及角花處理,既簡單又精致。
兩位教授在對室內空間的視覺效果上也有非常嚴格的講究,設計師也細節做了更多美化設計,使空間從各個角度看上去都能形成一幅構圖優美的畫卷。
△細節欣賞
兩位教授的臥室是極為簡單素雅,也是一種生活習慣,為生活做減法,所以在臥室的呈現上也只是簡單而不失雅致。
而兩位主人家里最為“時尚”一角就是這個觀影吧和運動區啦。運動休閑也是兩位教授在工作生活之余的一點增味劑,展現著對生活的活力~
最趣味的角落一定是這個充滿生命力的小魚池,小小的假山守護,碧池蓮花設計,青瓷點綴,養魚的同時也是一種對美感的無限追求
跟著小美看過這個美家,是不是有種踏進蘇州園林藝術的享受?把家打造成為一個雅致的園林,處處將生活與文化藝術融合,讓空間有了更多的美感和生命力。
美家分析

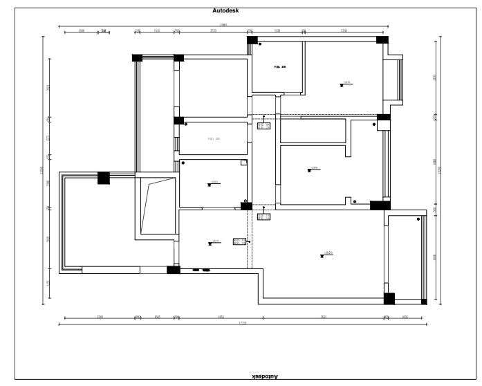
△ 原始結構圖
1.最開始的結構餐廳是比較小的,業主想把餐廳放到搭建的露臺,這樣離廚房比較遠,而且原先餐廳的空間就比較浪費了,所以把廚房適當的做了調整,把餐廳做大,然后搭建的露臺增加了玻璃頂做成了娛樂室,多出來一個功能空間,并做了電動遮陽簾,避免陽光直射。
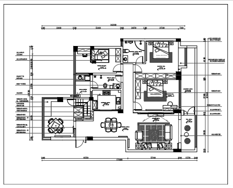
△ 平面布置圖
2.客廳的陽臺也和客廳打通,擴大客廳的空間,再從原客廳陽臺往外搭建了一間露天的陽臺,滿足日常生活的需求。
3.樓梯間換了一個方向,順暢的連接樓下的空間,并且也起到隱私的作用,讓樓下可跟樓上完全獨立分開。
4.取消原來的主臥衣帽間,讓主臥更加周正,衣柜的尺寸不僅沒縮小反而增大了。
5.女兒房和長輩房各自的陽臺都并入房間,讓房間更加寬敞和明亮。
美家后記
女主人開心的跟小美聊到:很感謝設計師張勛的用心,也很滿意美迪裝飾的工程質量,很多問題我們自己沒發現,設計師和美迪的人都會細心提出并解決。最難得的是設計師花了很多心思在裝修中,幫我們將很多天馬行空的想法變為現實。
設計師簡介
/張勛/
高級設計師
從業經驗:10年
擅長風格:
新中式,美式,現代,輕奢
代表作品:
家裝案例:振業城別墅,迪亞溪谷別墅,谷山逸墅別墅,京武浪琴山,北辰三角洲
工裝案例:雷諾4S店,明天一城售樓部,新里程教育,城市便捷主題酒店
設計理念:
設計必須考慮實際用途和規劃,以人為本,以改善使用用途和生活方式為最終目的。一套好的作品,不在于豪華或者奢侈,而在于雙方的語言溝通、心靈交流。